+6
Belley (01300)

Local professionnel 380 m²

2
Nous consulter
Réf PEY-4351

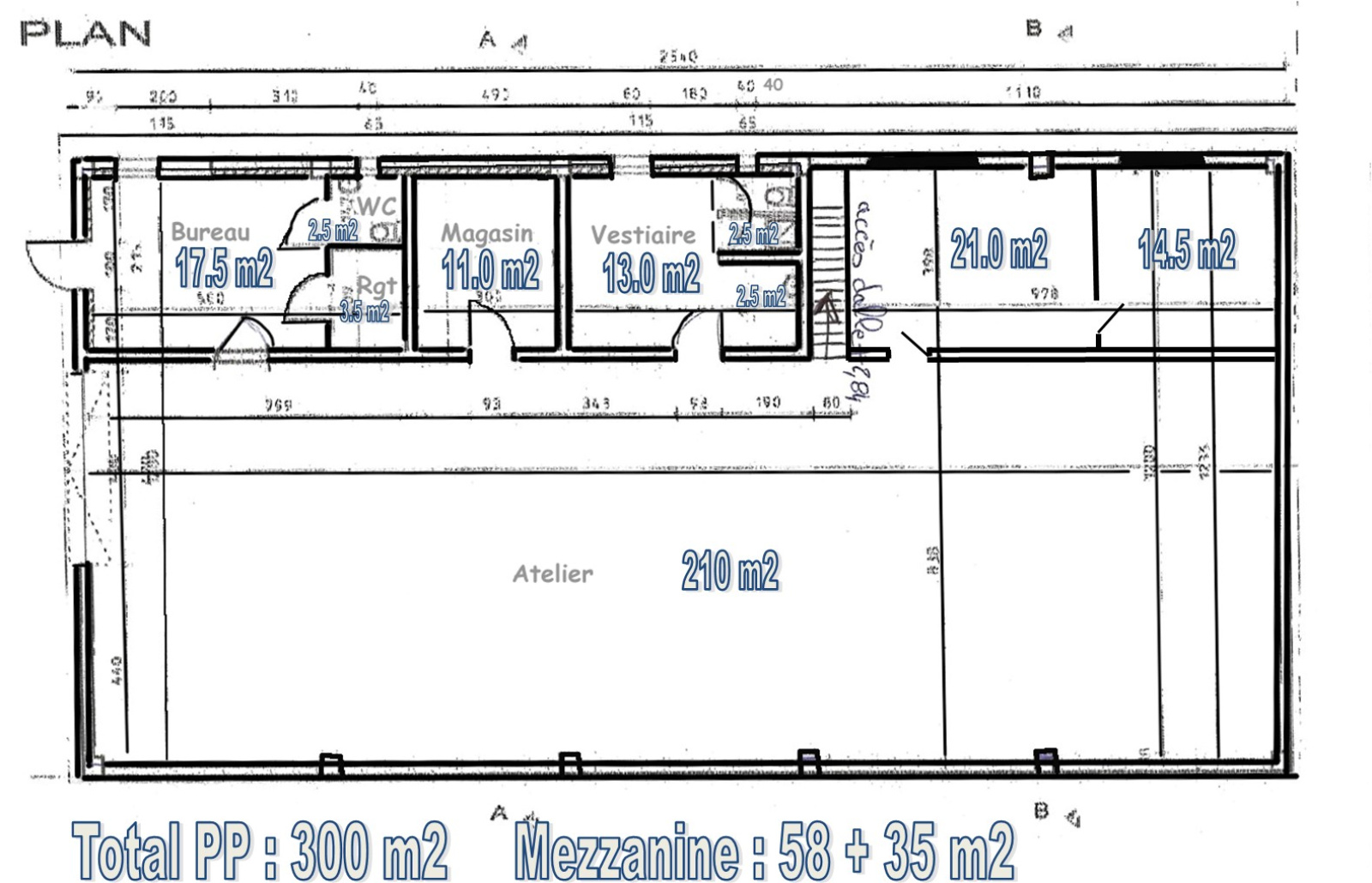
Gilles BUISSON vous propose à Peyrieu et en exclusivité ce vaste local d'activité achévé en 2009 et offrant environ 380 m2 agencés comme suit :

- de plain-pied : Bureau/accueil, cuisine, vestiare, 2 pièces, 2 wc, une douche et un atelier.

- en mezzanine : belle surface de 93 m2.

Terrain plat de 1500 m2 cadastré,

Construction béton et parpaing, isolation par l'intérieur, chauffage clim réversible + convecteurs + air pulsé, double vitrage, volet roulants, assainissement fosse septique aux normes, grande porte de garage sectionnelle.

Excellent état général à 10 minutes de Belley et Yenne, 35 minutes de Chambéry et Aix-les-Bains, 1 huere de Lyon, Grenoble, Annecy et Genève.

Annonce proposée par un agent commercial

Bilan énergétique

Diagnostics énergetiques
A propos de ce bien Caractéristiques de ce bien
  • Surface 380 m²
  • Chauffage individuel : air pulsé (climatisation)
  • 2 niveau(x)
  • 1 étage(s)

Composition

Composition de ce bien

Rez-de-chaussée

  • bureau 17.5 m²
  • entrepot 210 m²
  • cuisine 11 m²
  • WC 2.5 m²
  • WC 2.5 m²
  • vestiaire 15.5 m²
  • pièce 21 m²
  • pièce 14.5 m²

Etage 1

  • 93 m²

Autour du bien

Découvrez le quartier
BUISSON (EI) Agence