+14
Châlons-en-Champagne (51000)

Immeuble 266 m² 3 etage(s)

3
Nous consulter
Réf 3914-DV-0568

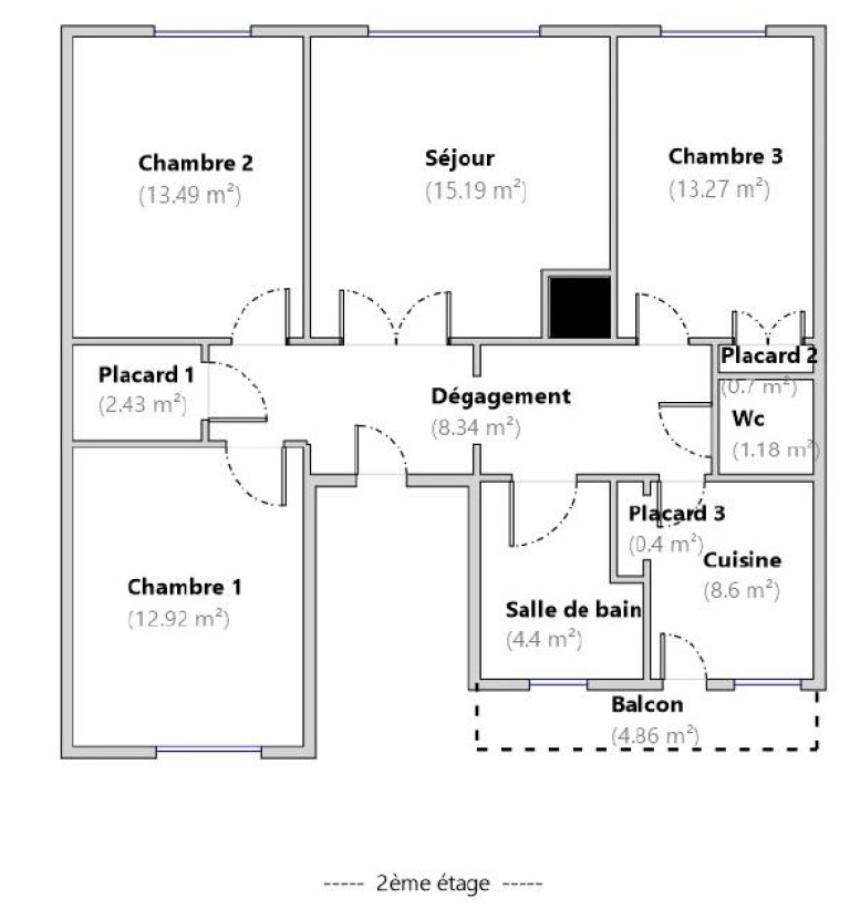
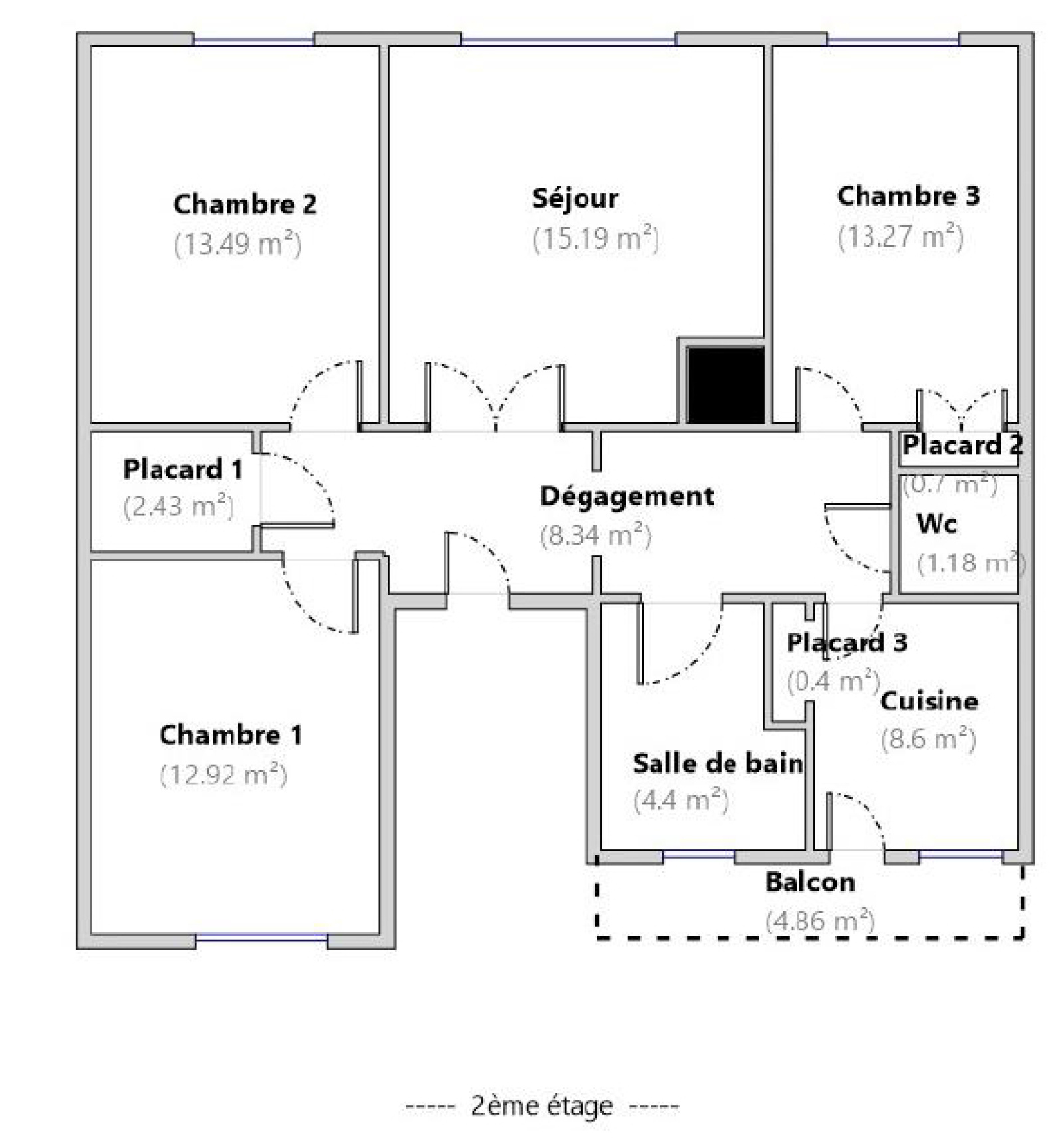
Ref 3914-DV0-568 : A Vendre David VERT votre agent mandataire en immobilier depuis 2010 sur Châlons en Champagne et sa région vous propose à Châlons en Champagne proche gare au 42 rue d'Orléans, ce bel immeuble à usage professionnel et d'habitation, comprenant : Rez-de-chaussée : entré des communs, local vélo, un local professionnel de 66m² composé de : Rdc : entrée avec salle d'attente, Rdc : bureau, Rdc : cuisine, Rdc : sanitaires. Rdc : Salle de réunion. - ancienne location : 550 € + 54 € de charges Grand passage et garage intérieur. Premier étage : un appartement de type IV loué 80.52 m² carrez - location actuelle 548 € + 52 € de charges DPE : F 360 kWh/m²/an et F 78 kgCO²/m²/an 1er étage - Dégagement 7.7 m² Carrez et au sol : 7.7 m² 1er étage - Chambre 1 13.2 m² Carrez et au sol : 13.2 m² 1er étage - Placard 1 2.1 m² Carrez et au sol : 2.1 m² 1er étage - Chambre 2 14.01 m² Carrez et au sol : 14.01 m² 1er étage - Séjour 15.59 m² Carrez et au sol : 15.59 m² 1er étage - Chambre 3 13.69 m² Carrez et au sol : 13.69 m² 1er étage - Wc 1.16 m² Carrez et au sol : 1.16 m² 1er étage - Cuisine 8.67 m² Carrez et au sol : 8.67 m² 1er étage - Salle de bain 4.4 m² Carrez et au sol : 4.4 m² Parties annexes : Sous-Sol - Cave 8.1 m² carrez et 8.1 m² sol 1er étage - Placard 2 : 0.65 m² carrez 0.65 m² sol 1er étage - Placard 3 : 0.4 m² carrez 0.4 m² sol 1er étage - Balcon : 4.8 m² environ carrez 4.8 m² sol Second étage : un appartement de type IV loué 79.82 m² carrez. - location actuelle 570 € + 50 € de charges DPE : E 283 kWh/m²/an et E 61 kgCO²/m²/an 2ème étage - Dégagement 8.34 m² Carrez et au sol : 8.34 m² 2ème étage - Chambre 1 12.92 m² Carrez et au sol : 12.92 m² 2ème étage - Placard 1 2.43 m² Carrez et au sol : 2.43 m² 2ème étage - Chambre 2 13.49 m² Carrez et au sol : 13.49 m² 2ème étage - Séjour 15.19 m² Carrez et au sol : 15.19 m² 2ème étage - Chambre 3 13.27 m² Carrez et au sol : 13.27 m² 2ème étage - Wc 1.18 m² Carrez et au sol : 1.18 m² 2ème étage - Cuisine 8.6 m² Carrez et au sol : 8.66 m² 2ème étage - Salle de bain 4.4 m² Carrez et au sol : 4.4 m² Parties annexes : Sous-Sol - Cave n°2 7.13 m² carrez et 7.13 m² sol 2ème étage - Placard 2 : 0.7 m² carrez 0.7 m² sol 2ème étage - Placard 3 : 0.4 m² carrez 0.4 m² sol 2ème étage - Balcon : 4.86 m² environ carrez 4.86 m² sol Troisième étage : deux studios et un type II . Troisième étage : Studio n°1 vide de 9.02 m² carrez et 16.08 m² sol - ancienne location : 250 €+ 30 € de charges. DPE : G 478 kWh/m²/an et C 14 kgCO²/m²/an 3ème étage : Cuisine 2.58 m² carrez et 2.58 m² sol 3ème étage : Séjour 3.23 m² carrez et 10.29 m² sol 3ème étage : Salle d'eau 3.21 m² carrez et 3.21 m² sol Troisième étage : Studio n°2 vide de 13.30 m² carrez et 28.58 m² sol - ancienne location : 280 €+ 30 € de charges. DPE : F 395 kWh/m²/an et C 12 kgCO²/m²/an 3ème étage : Séjour - Cuisine 10.22 m² carrez et 25.25 m² sol 3ème étage : Salle d'eau 3.08 m² carrez et 3.33 m² sol Troisième étage : Studio n°3 vide de 19.84 m² carrez et 37.47 m² sol - ancienne location : 300 €+ 30 € de charges. DPE : F 359 kWh/m²/an et C 11 kgCO²/m²/an 3ème étage : Séjour 7.87 m² carrez et 15.75 m² sol 3ème étage : Cuisine 1.93 m² carrez et 3.57 m² sol 3ème étage : Salle d'eau 3.2 m² carrez et 3.2 m² sol 3ème étage : Chambre 6.84 m² carrez et 14.95 m² sol Descriptif issu des diagnostics techniques avec une date de repérage du 13/12/2022 Cave divisée en 6 cellules. Taxes Foncières pour 2022 : 5026 € Tous les Diagnostics ont été fait en Décembre 2022. Soit DPE, électricité, amiante, gaz, mesurage carrez, ernmt.

Annonce proposée par un agent commercial


Les informations sur les risques auxquels ce bien est exposé sont disponibles sur le site Géorisques

Bilan énergétique

Diagnostics énergetiques
A propos de ce bien Caractéristiques de ce bien
  • Surface 266 m²
  • terrain 183 m²
  • 4 chambre(s)
  • 3 étage(s)

Autour du bien

Découvrez le quartier

Simulation

Calcul des mensualités
* Champs obligatoires
VERT (EI) Agence