+46
La Chaussée-sur-Marne (51240)

Maison de village 5 pièce(s) 3 chambre(s) 120 m²

1
840 m²
1
179 900 €
Réf 6196-DV-0641

Ref 6196-DV-0629

David Vert votre Conseiller Immobilier indépendant depuis 2010, vous propose :

Entre Châlons-en-Champagne et Vitry-le-François – secteur Pogny / La Chaussée-sur-Marne
Longère de caractère du XIXᵉ siècle – ancien corps de ferme – sans vis-à-vis

Dans un environnement calme et préservé, cette authentique longère datant de 1850 à 1900 séduit par son cachet, ses matériaux nobles (pierre de taille et brique) et son important potentiel d’évolution.

La maison développe environ 110 m² habitables, avec plus de 100 m² supplémentaires aménageables à l’étage.
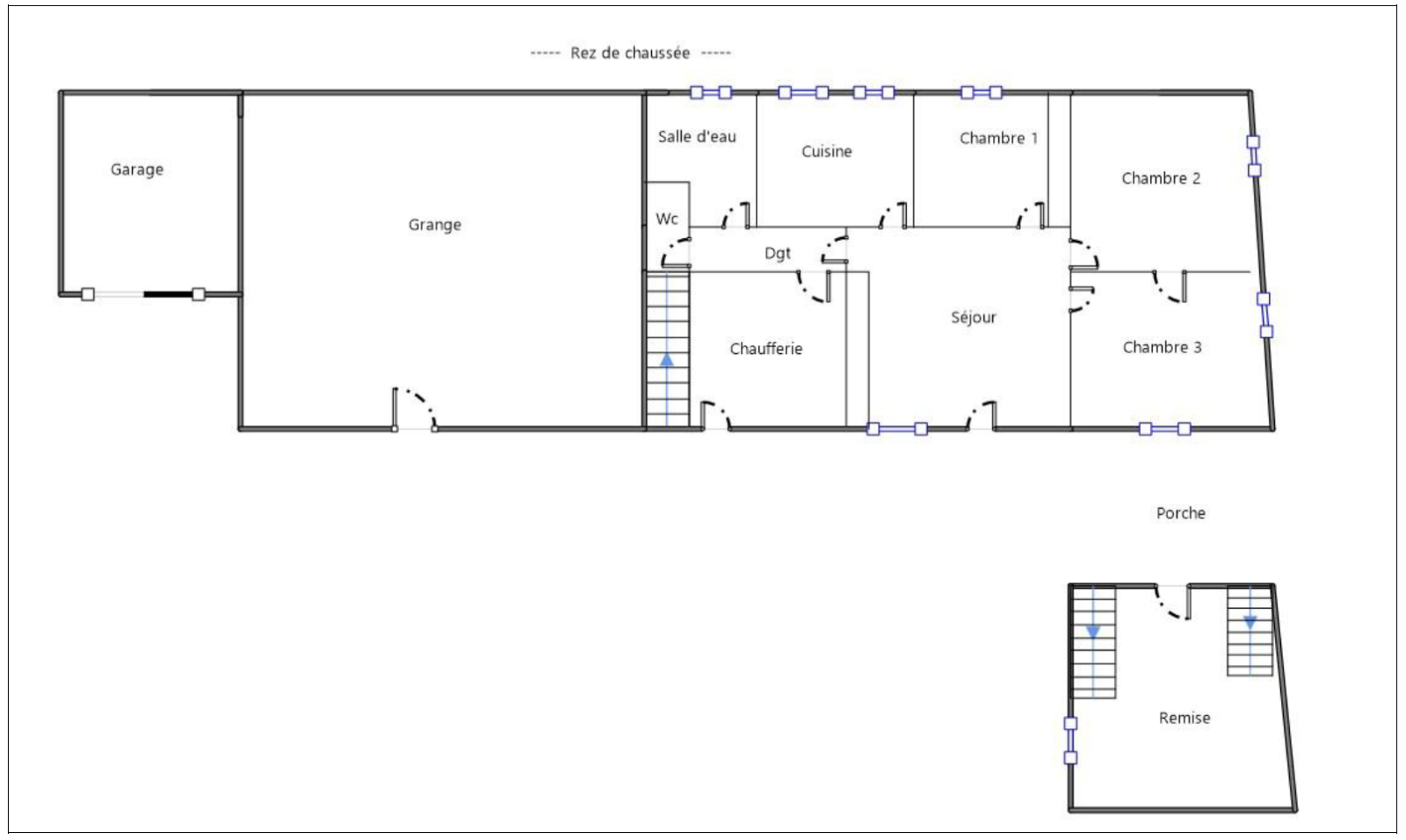
Le rez-de-chaussée se compose d’un vaste séjour central, de trois chambres, d’une cuisine et d’une salle d’eau avec douche à l’italienne récente. Les pièces chauffées bénéficient du double vitrage.

Le chauffage est assuré par une chaudière fioul De Dietrich, qui devra être remplacée dans le cadre de travaux d’amélioration énergétique, par un système plus performant et moins énergivore.

Confère la copie de l'audit énergétique et ses différents sénarios dans les photos qui suivent. Pour arriver en D coût estimé par ce dernier environ 25 800 €.

À l’étage, un plateau brut de plus de 100 m² permet d’envisager un agrandissement conséquent.
L’ensemble est complété par de nombreuses dépendances : grange avec cave voûtée en craie, cave, remise, pièces annexes chauffées et garage indépendant.

La partie annexe, disposant de son accès indépendant, offre de multiples possibilités :
bureau pour activité professionnelle, logement indépendant type T2 pour la famille, famille recomposée, investissement locatif ou location de courte durée.

Implantée sur une parcelle constructible de plus de 800 m², entièrement close de murs, la propriété bénéficie d’un cadre intime avec jardin ancien, grilles en fer forgé d’époque et abricotier.

DPE classé G – audit énergétique réalisé.
Des travaux d’amélioration énergétique sont à prévoir, ouvrant droit, selon le profil des acquéreurs, à des aides financières à la rénovation.

Bien rare sur le secteur de Pogny – La Chaussée-sur-Marne, idéal pour une résidence principale de caractère, un primo-accédant ambitieux ou un artisan souhaitant valoriser son patrimoine par son savoir-faire.

Ou couple qui souhaite faire un investissement avec un appartement indépendant ou mieux un AirB&B !

David Vert Immobilier by Provimo

Appelez-moi directement pour prendre rendez-vous ou obtenir des renseignements.

Votre conseiller immobilier depuis 2010 sur le secteur de Châlons-en-Champagne et sa région :
51000 – 51470 – 51520 – 51510 – 51240 – 51470 – 51400 – 51600 – 51150

Annonce proposée par un agent commercial


Les informations sur les risques auxquels ce bien est exposé sont disponibles sur le site Géorisques

Bilan énergétique

Diagnostics énergetiques
A propos de ce bien Caractéristiques de ce bien
  • Surface 120 m²
  • carrez 120 m²
  • terrain 840 m²
  • séjour 21 m²
  • 3 chambre(s)
  • 1 salle(s) d'eau
  • construit en 1900
  • cuisine séparée (semi-équipée)
  • Chauffage : ()
  • 1 garage(s)
  • 1 parking(s)
  • exposition Nord-Ouest
  • vue sans vis à vis
  • arboré

Financier

Informations financières
Prix de vente honoraires TTC inclus 179 900 €

Autour du bien

Découvrez le quartier

Simulation

Calcul des mensualités
* Champs obligatoires
VERT (EI) Agence