+6
Saint-André-de-Corcy (01390)

Triplex 3 pièce(s) 1 chambre(s) 123 m²

129 000 €
Réf 5001

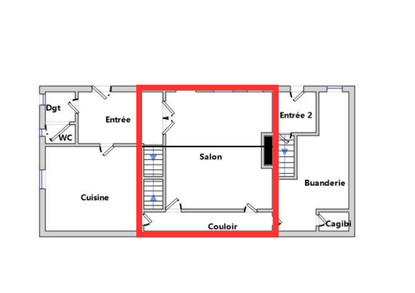
En plein centre de Saint-André-de-Corcy, à côté de la gare, dans le cadre d'une division verticale d'une maison de village, nous vous proposons ce triplex ,o,-valbilisé de 123 M3 sur 3 niveaux de 41 M2 + 1 cave de 20 M2. Ce lot est vendu avec une autorisation pour une porte d'entrée d'accès au lot en cours de demande. Idéal investissuers ou personnes cherchant grande surface à prix accessbible en coeur de commune

Annonce proposée par un agent commercial

Bilan énergétique

Diagnostics énergetiques
A propos de ce bien Caractéristiques de ce bien
  • Surface 123 m²
  • carrez 123 m²
  • séjour 41 m²
  • 1 chambre(s)
  • 3 niveau(x)
  • 3ème étage
  • 3 étage(s)

Composition

Composition de ce bien

Rez-de-chaussée

  • salon/sejour 40 m²

Financier

Informations financières
Prix de vente honoraires TTC inclus 129 000 €
Taxe foncière annuelle 500 €

Autour du bien

Découvrez le quartier

Simulation

Calcul des mensualités
* Champs obligatoires
CORCY TRANSACTIONS Agence