+6
Hauteville-Lompnes (01110)

Maison 12 pièce(s) 7 chambre(s) 190 m²

2
1100 m²
Nous consulter
Réf LYAMAR
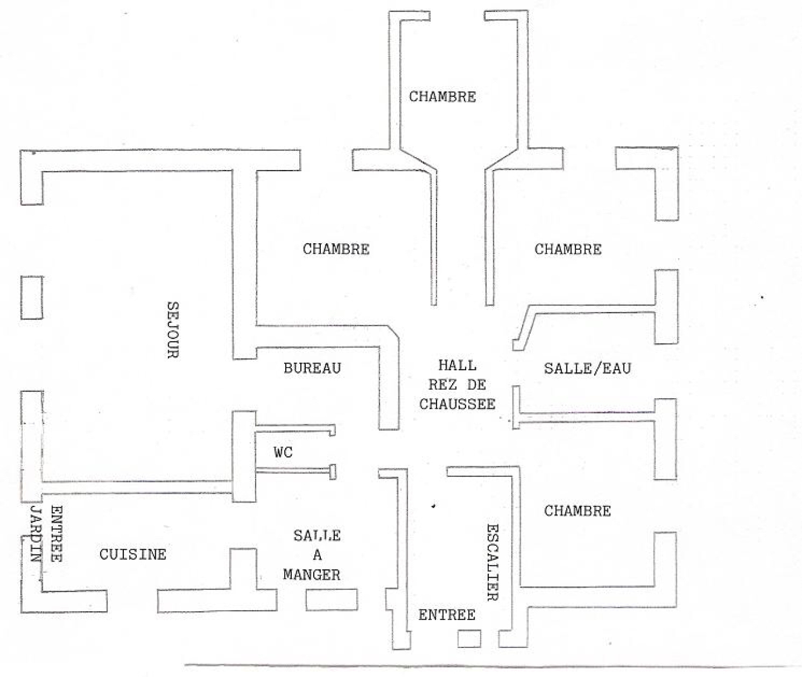
Votre conseillère AUDREY LYANDRAT vous propose en exclusivité Au bout d'une impasse, dans un quartier calme d'Hauteville, venez visiter cette belle maison de maître des années 1950. Edifiée sur une parcelle de 1100m2, profitez de son magnifique jardin arborée. Maison très bien entretenue, habitable de suite. Bien agencée. Elle comprend 2 appartements: - au rez de chaussée : appartement de 110 m2 environ avec un hall d'entrée desservant une cuisine/salle à manger, salon, 4 chambres, une salle d'eau, WC. Accès direct au jardin sans vis à vis. - au 1er étage : appartement de 80m2 environ avec entrée, cuisine, séjour, 2 chambres, bureau, salle d'eau, WC, dégagement - en sous sol : garage avec caves. une remise supplémentaire non attenante. Chauffage central sur pompe à chaleur air/eau (année 2008). Maison idéale pour location : entrées indépendantes, 2 compteurs EDF, 2 chauffes eau électriques. N'attendez plus et prenez rdv au 06 26 07 48 53

Annonce proposée par un agent commercial

Bilan énergétique

Diagnostics énergetiques
A propos de ce bien Caractéristiques de ce bien
  • Surface 190 m²
  • terrain 1 100 m²
  • 7 chambre(s)
  • 2 salle(s) d'eau
  • construit en 1950
  • Chauffage collectif : autre (pompe à chaleur)
  • 1 étage(s)

Composition

Composition de ce bien

Rez-de-chaussée

  • entrée - dégagement 6 m²
  • cuisine 8 m²
  • salle à manger 7 m²
  • salon 27 m²
  • chambre 1 10 m²
  • chambre 2 10,50 m²
  • chambre 3 13 m²
  • salle d'eau 6,20 m²
  • w.c. 1 m²
  • chambre 4 9,70 m²
  • dégagement placards 5 m²

Etage 1

  • cuisine 8 m²
  • bureau 5 m²
  • w.c. 1 m²
  • salle d'eau 4,50 m²
  • entrée - dégagement 8 m²
  • chambre 1 10 m²
  • chambre 2 14 m²
  • salon 14 m²

Financier

Informations financières
Taxe foncière annuelle 1 400 €

Autour du bien

Découvrez le quartier

Simulation

Calcul des mensualités
* Champs obligatoires
LYANDRAT (EI) Agence