+4
Vienne (38200)

Appartement 2 pièce(s) 1 chambre(s) 59 m²

1
Balcon
Ascenseur
Nous consulter
Réf Bous38

VENDU, Lionel DOBROWOLSKI IMMOBILIER vous présente en exclusivité ce superbe appartement T2, situé au 3e étage avec ascenseur de cet immeuble construit en 2015.

Découvrez cette copropriété aux espaces extérieurs sécurisés, à l'environnement naturel via un parc boisé. Vous profiterez d'un bati en excellent état, sans travaux à prévoir, des parties communes soignées disposant d'accès confortables.

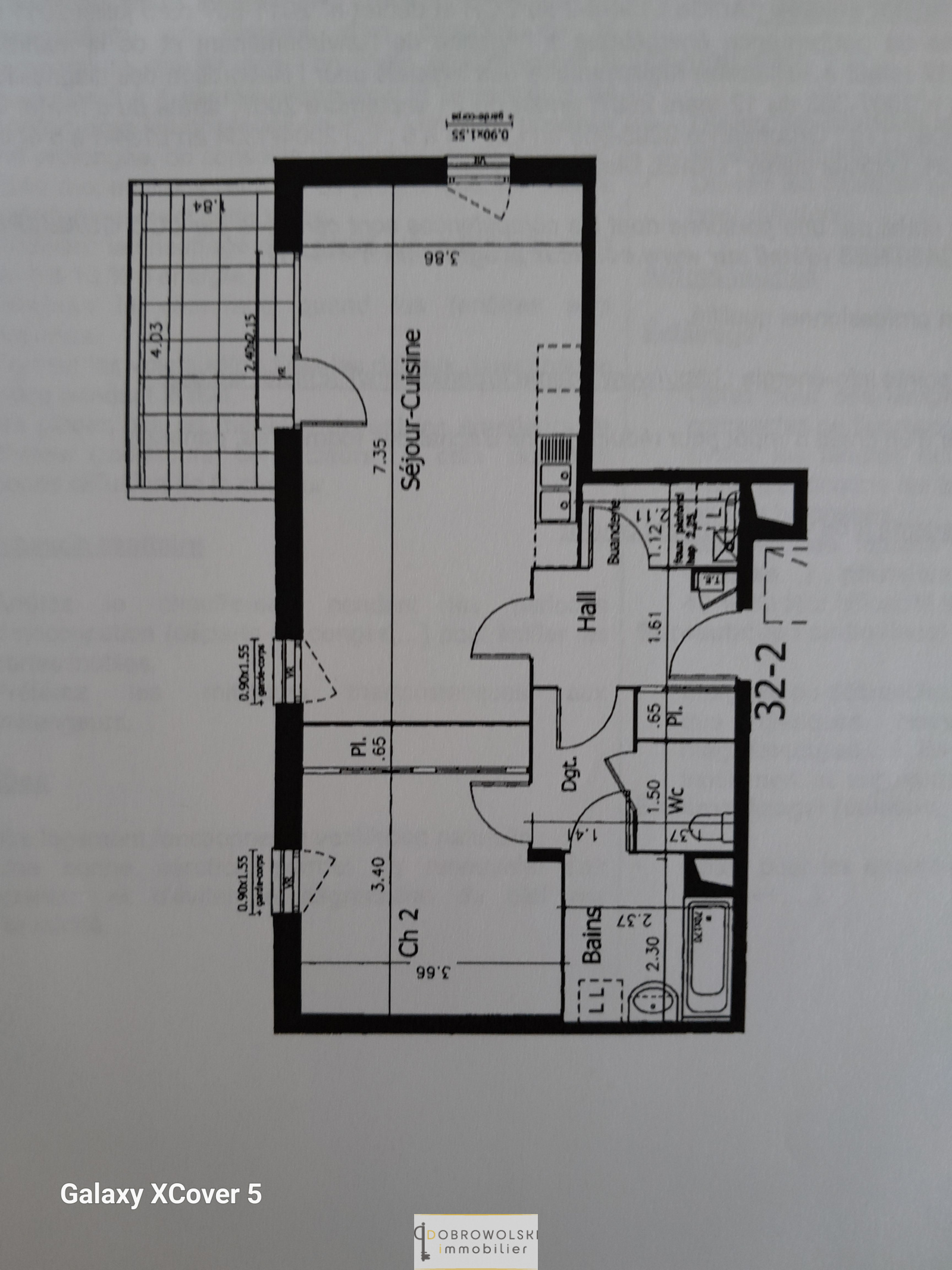
L'appartement est composé d'une cuisine équipée ouverte sur le salon/séjour donnant accès à un balcon de plus de 7m2, d'un espace buanderie, d'un WC indépendant, d'une salle de bains ainsi que d'une chambre d'environ 14m2; il dispose également d'un garage fermé à l'accès sécurisé.

Son état d'entretien est excellent, il est équipé dhuisserie en PVC double vitrage, d'une chaudière individuelle gaz à condensation. La taxe foncière s'élève à 1339€ et comprend la taxe d'ordure ménagère.

L'appartement est loué depuis le 26/10/2024, le loyer s'élève à 617€/mois.

Appréciez cet appartement par les prestations esthétiques et techniques proposées et par son environnement situé non loin de toutes les commodités de Vienne.

Annonce proposée par un agent commercial


Les informations sur les risques auxquels ce bien est exposé sont disponibles sur le site Géorisques

Bilan énergétique

Diagnostics énergetiques
A propos de ce bien Caractéristiques de ce bien
  • Surface 59 m²
  • carrez 59,10 m²
  • séjour 26,95 m²
  • 1 chambre(s)
  • 1 salle(s) de bain
  • construit en 2015
  • cuisine américaine
  • Chauffage individuel : radiateur (gaz)
  • 1 garage(s)
  • 3ème étage
  • 3 étage(s)
  • ascenseur
  • balcon
  • visiophone
  • accès handicapé

Info copro

Copropriété
  • Copropriété Oui
  • Lot n° 52 14
  • Quote part annuelle des charges 1 032 €
  • Plan de sauvegarde Non

Financier

Informations financières
Taxe foncière annuelle 1 339 €

Autour du bien

Découvrez le quartier

Simulation

Calcul des mensualités
* Champs obligatoires
DOBROWOLSKI (EI) Agence