+16
Culoz (01350)

Maison 6 pièce(s) 4 chambre(s) 125 m²

1
395 m²
1
Nous consulter
Réf CULOZ-5286

Gilles BUISSON vous propose en exclusivité ceete charmante maison dans un petit lotissement à quelques pas de la gare de Culoz.

Achevée en 1997 elle offre environ 125 m2 habitables agencés en 2 niveaux sur 395 m2 de terrain.

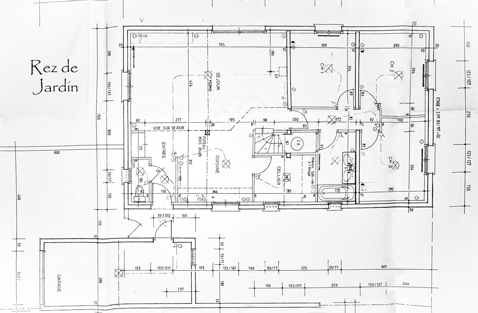
Rez de jardin : entrée, pièce de vie avec cuisine équipée, 3 chambres, un cellier, wc séparé, salle d'eau et couloir.

Etage : mezzanine, chambre, bureau et dégagement.

Chauffage PAC (2019) sur plancher chauffant + cheminée avec insert, isolation par les murs et par le toit, menuiseries PVC double vitrage (2010), tout à l'égout; alarme, barbecue, fibre optique, VMC, abris de jardin.

Terrain plat, clos et arboré, excellent état général, maison soignée.

A queqlues pas du centre ville et des commerces, proche de la gare, dans un petit lotissement très calme, elle est idéale pour une famille, des jeunes retraités ou un jeune couple avec de beaux projets !!!

Belley à 15 mn, Aix-les-Bains à 45 mn, Chambéry à 50 mn, Lyon, Grenoble, Annecy et Genève à 1h.

Annonce proposée par un agent commercial


Les informations sur les risques auxquels ce bien est exposé sont disponibles sur le site Géorisques

Bilan énergétique

Diagnostics énergetiques
A propos de ce bien Caractéristiques de ce bien
  • Surface 125 m²
  • terrain 395 m²
  • 4 chambre(s)
  • 1 salle(s) d'eau
  • construit en 1997
  • cuisine américaine (équipée)
  • Chauffage individuel : trad_type_chauff_air_eau (pompe à chaleur)
  • 1 garage(s)
  • 1 parking(s)
  • exposition Est-Ouest
  • 2 niveau(x)
  • terrasse

Composition

Composition de ce bien

Rez-de-chaussée

  • entrée 3 m²
  • pièce à vivre 40 m²
  • chambre 9 m²
  • chambre 11 m²
  • chambre 10.5 m²
  • salle d'eau 5.5 m²
  • WC 2 m²
  • couloir 4 m²
  • garage 19 m²

Etage 1

  • mezzanine 9 m²
  • chambre 13 m²
  • bureau 7 m²
  • dégagement 5 m²

Financier

Informations financières
Taxe foncière annuelle 1 200 €

Autour du bien

Découvrez le quartier

Simulation

Calcul des mensualités
* Champs obligatoires
BUISSON (EI) Agence