+6
Saint-Chef (38890)

Maison 6 pièce(s) 4 chambre(s) 122 m²

1
1
1986 m²
278 000 €
Réf cham 1109

Située sur une belle parcelle de 1 986 m², cette maison profite d’une exposition sud-ouest idéale et d’une vue dégagée sur la campagne et la forêt, offrant un cadre de vie paisible et verdoyant.

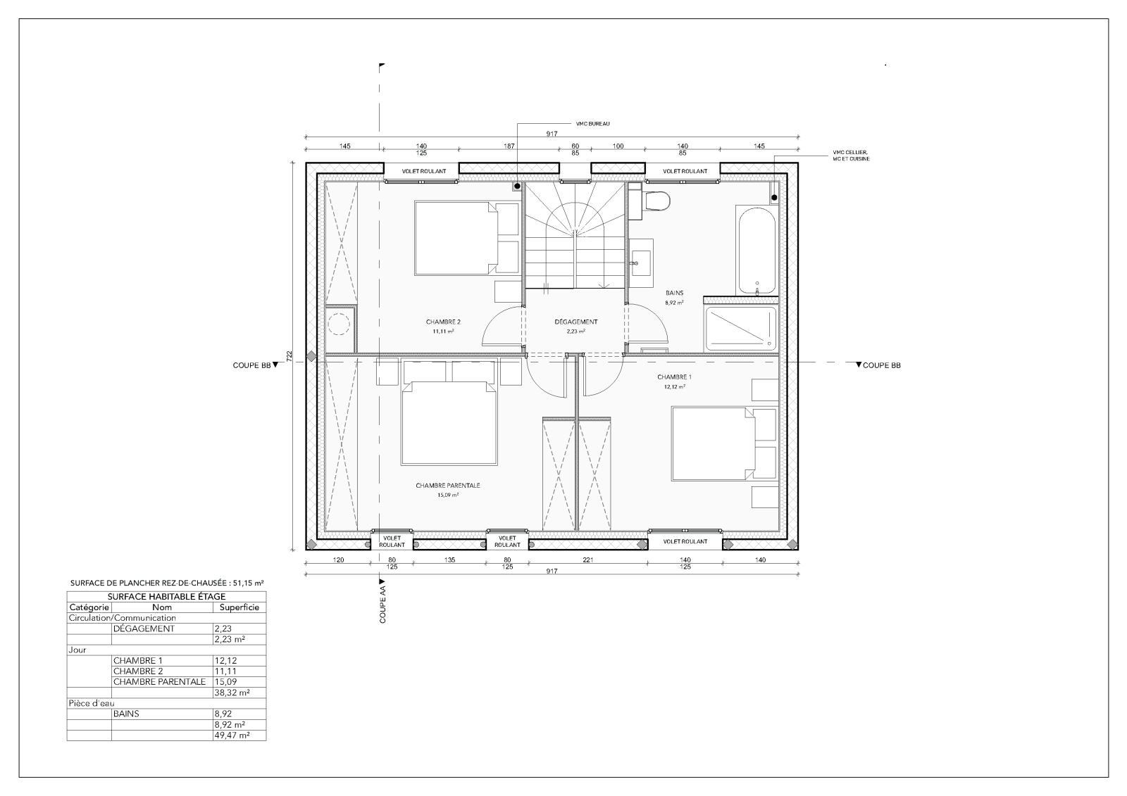
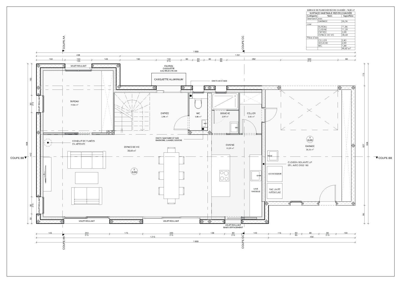
Édifiée sur deux niveaux (R+1), elle développe 122 m² habitables, complétés par un garage attenant de 26 m².

La maison est vendue hors d’eau, hors d’air, avec des menuiseries en aluminium gris anthracite qui soulignent son allure contemporaine et élégante. Les futurs acquéreurs bénéficieront ainsi d’une structure aboutie, tout en gardant la liberté de personnaliser les aménagements et finitions intérieures selon leurs goûts et leur budget.

Celons les plans intérieurs actuel au Rez-de-chaussée vous trouverez : 1 vaste hall d’entrée s’ouvrant Une pièce de vie de 50 m² regroupant salon, séjour et cuisine ouverte, largement ouverte sur l’extérieur grâce à de grandes baies vitrées exposées sud-ouest, une chambre de 11,86 m², une salle d’eau, un cabinet de toilette indépendant et un cellier avec accès direct au garage.

A l’étage : un pallier desservant trois chambres de 11 m², 12 m² et 15 m²et une salle de bain de 9 m² spacieuse, prévue pour accueillir des prestations de qualité : douche à l’italienne, baignoire, meuble double vasque et WC.

Informations techniques

  • Viabilités en place : tabouret d’égout en bas du terrain, tabouret d’eau potable à l’entrée haute, tabouret de télécommunication
  • Projet offrant volumes généreux, confort moderne et liberté de personnaliser les finitions selon vos envies

Un dossier complet peut être transmis sur demande, comprenant :

  • Les équipements initialement prévus, notamment pour le chauffage
  • L’ensemble des devis réalisés par les artisans pressentis pour la fin de la construction.

À noter : la maison est vendue en l’état actuel, sans obligation de poursuivre avec les artisans mentionnés. Les finitions intérieures restent totalement libres, offrant une flexibilité totale pour concrétiser votre projet sur mesure.

Annonce proposée par un agent commercial


Les informations sur les risques auxquels ce bien est exposé sont disponibles sur le site Géorisques

Bilan énergétique

Diagnostics énergetiques
A propos de ce bien Caractéristiques de ce bien
  • Surface 122 m²
  • carrez 122 m²
  • terrain 1 986 m²
  • séjour 50 m²
  • 4 chambre(s)
  • 1 salle(s) de bain
  • 1 salle(s) d'eau
  • cuisine
  • 1 garage(s)
  • exposition Sud-Ouest
  • 2 niveau(x)
  • vue CAMPAGNE, FORÊT

Financier

Informations financières
Prix de vente 278 000 € Les honoraires d'agence seront intégralement à la charge du vendeur

Autour du bien

Découvrez le quartier

Simulation

Calcul des mensualités
* Champs obligatoires
SCHNEIDER (EI) Agence