+13
Saint-Marcellin (38160)

Maison 5 pièce(s) 3 chambre(s) 96 m²

1
276 m²
1
260 000 €
Réf F VMA650005441

LIVRAISON avril 2026 !

Frais de notaire réduit à 2.5%.


Sur la commune de SAINT-MARCELLIN, rue Carnot, découvrez cette maison neuve située à proximité des commodités, de la gare et de l'autoroute.

Moderne, elle offre sur deux niveaux d'environ 96 m² habitables un cadre de vie confortable et fonctionnelle avec une vue dégagée sur les champs.

Elle se compose de la façon suivante:

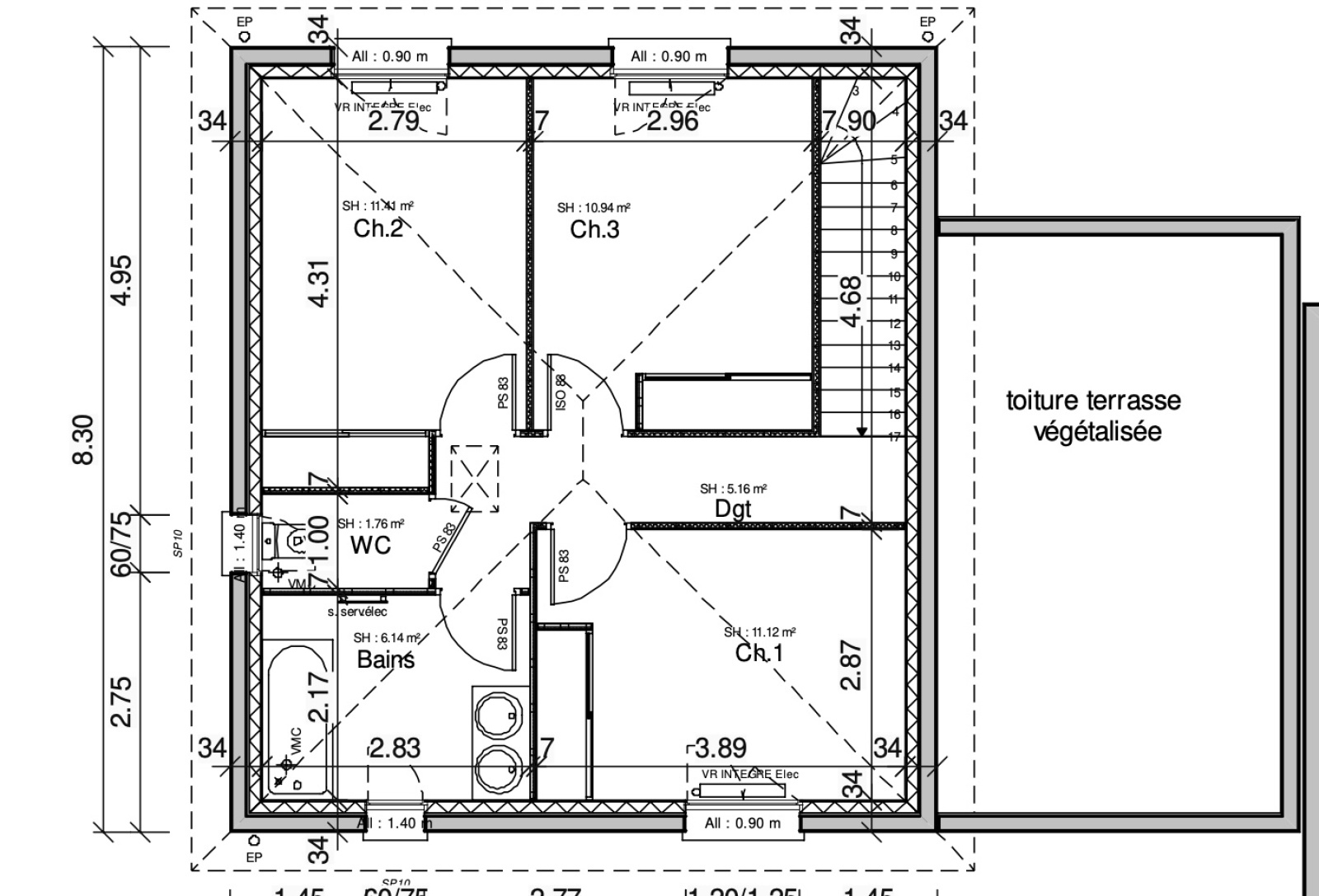
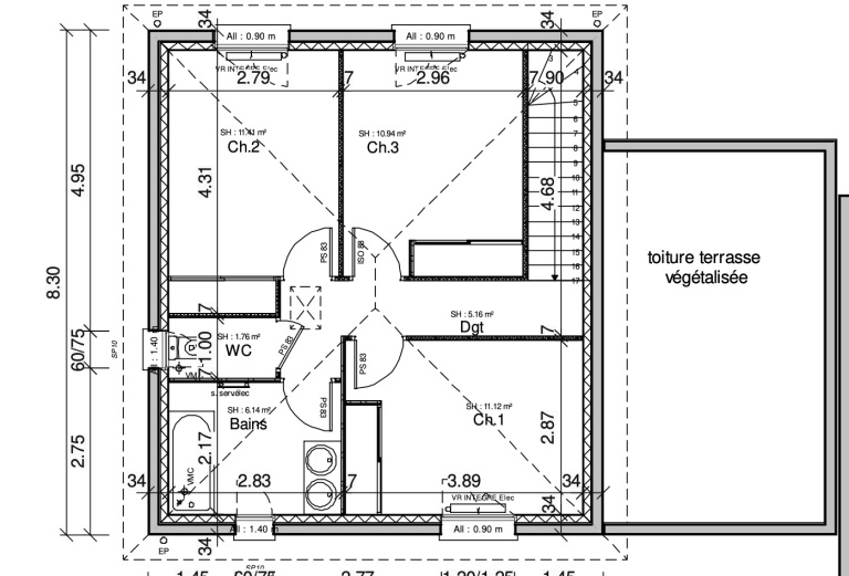
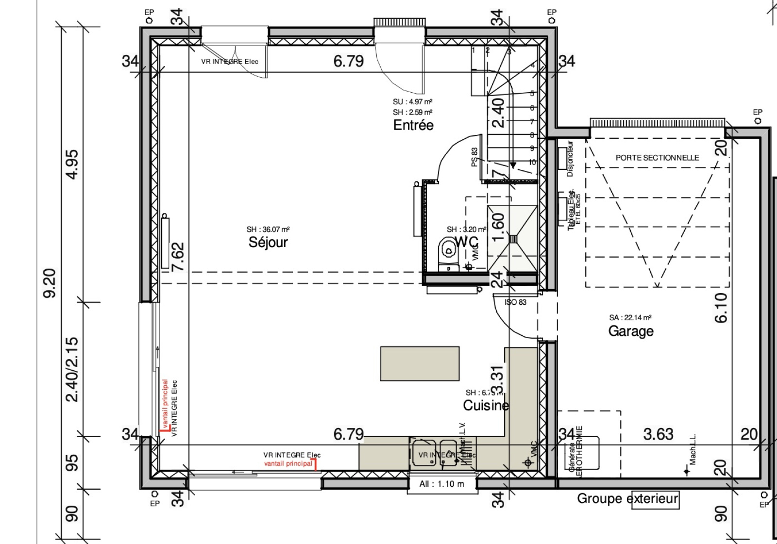
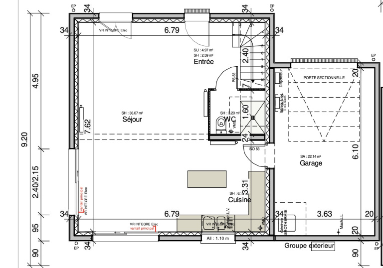
un rez-de-chaussée comprenant une entrée, une cuisine ouverte sur grand séjour lumineux, toilettes ainsi qu'une suite parentale avec salle d'eau. A l'étage, un palier desservant trois chambres et une salle de bains avec toilettes.

Chauffage au sol par pompe à chaleur pour toutes les pièces.

Un garage attenant de plus de 20m². Terrain entièrement clos avec place de stationnement.

Personnalisez-là à votre goût: reste à finaliser les joints, les peintures (possibilité de les faire réaliser en sus) et la cuisine.


Bien non soumis au DPE

Bilan énergétique

Diagnostics énergetiques
A propos de ce bien Caractéristiques de ce bien
  • Surface 96 m²
  • terrain 276 m²
  • séjour 36 m²
  • 3 chambre(s)
  • 1 salle(s) de bain
  • construit en 2025
  • cuisine américaine
  • Chauffage individuel : au sol (pompe à chaleur)
  • 1 garage(s)
  • exposition Sud
  • 1 côté(s) mitoyen(s)
  • 2 niveau(x)

Composition

Composition de ce bien

Rez-de-chaussée

  • cuisine 6.79 m²
  • WC 3.20 m²
  • garage 22.14 m²
  • salon/sejour 36.07 m²

Etage 1

  • chambre 11.12 m²
  • chambre 11.41 m²
  • chambre 10.94 m²
  • WC 1.76 m²
  • salle de bain 6.14 m²

Financier

Informations financières
Prix de vente honoraires TTC inclus 260 000 €

Autour du bien

Découvrez le quartier

Simulation

Calcul des mensualités
* Champs obligatoires
ATALIS IMMOBILIER Agence