+2
Saint-Quentin-de-Baron (33750)

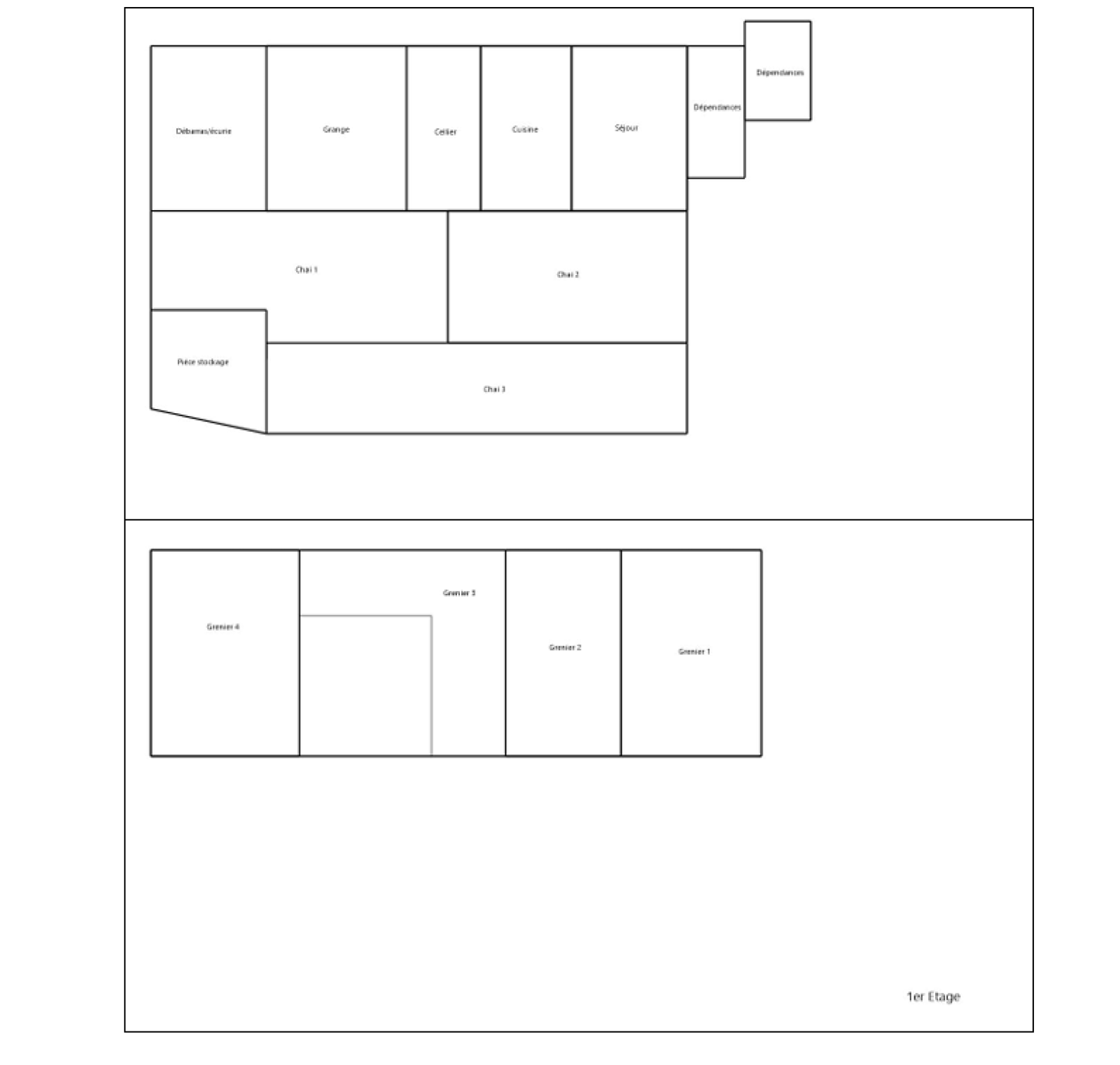
Maison 9 pièce(s) 3 chambre(s) 420 m²

1854 m²
249 000 €
Réf 2025 27 LES

Situé sur la commune de St Quentin de Baron dans un environnement champêtre avec des vignes et sur un point dominant, je vous propose cette belle maison en pierre de 420 m2 sur un magnifique terrain de 1854m2.

Vous serez immédiatement séduit par l'environnement, le calme et la vue. Vous apprécierez également la situation en cul de sac..

Le terrain bénéficie d'une grande partie constuctible : 1607m2 en zone UC avec 40% d'emprise au sol.

La maison dispose d'une surface bati de 420m2. Elle est entièrement à rénover mais bénéficient de magnifique murs en pierre en très bon état.

Une partie du batiment est mitoyen actuellement mais pourra facilement être séparé de la batisse du voisin.

La parcelle est viabilisé avec un raccord au tout à l'égout.

Je me tiens à votre disposition pour vous présenter ce bien rempli de charme qui peut permettre de réaliser un beau projet.

Annonce proposée par un agent commercial

Bilan énergétique

Diagnostics énergetiques
A propos de ce bien Caractéristiques de ce bien
  • Surface 420 m²
  • terrain 1 854 m²
  • 3 chambre(s)
  • construit en 1880
  • exposition Nord-Sud
  • vue Vue campagne
  • piscinable

Financier

Informations financières
Prix de vente honoraires TTC inclus 249 000 €

Autour du bien

Découvrez le quartier

Simulation

Calcul des mensualités
* Champs obligatoires
LETAILLEUR (EI) Agence