+8
Cézac (33620)

Maison 4 pièce(s) 3 chambre(s) 85 m²

1
510 m²
2
Nous consulter
Réf CB2397
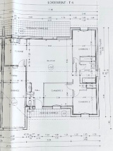
Belle maison contemporaine de 2002, sur le secteur de Cézac proche de toutes les commodités. Cette maison se compose d'une entrée avec placard, un WC à gauche, on rentre sur un grand salon salle à manger lumineux, avec une cuisine attenant à un garage de 15 m². Il y un petit couloir avec 3 chambres et 1 salle de bain. Il y a une grande terrasse qui donne sur le jardin. Chauffage électrique et tout à l'égout. Le tout sur une parcelle de 510 m² avec jardin clos et portail. IMPORTANT : vendu avec les locataires, qui donnent un loyer hors charge de 720€ par mois. Pour plus de renseignements, n'hésitez pas à me contacter. Prix

Annonce proposée par un agent commercial

Bilan énergétique

Diagnostics énergetiques
A propos de ce bien Caractéristiques de ce bien
  • Surface 85 m²
  • terrain 510 m²
  • 3 chambre(s)
  • 1 salle(s) de bain
  • construit en 2002
  • TRAD_DETAIL_INFOS_GLOBAL_DEFAULT_CUISINE_FORMATED_SIMPLE_
  • Chauffage individuel : autre (electrique)
  • 2 parking(s)
  • exposition Sud
  • 1 côté(s) mitoyen(s)
  • terrasse

Composition

Composition de ce bien

Etage 1

  • entrée

Rez-de-chaussée

  • w.c.
  • salon - séjour
  • cuisine
  • cellier
  • couloir
  • chambre 1
  • chambre 2
  • chambre 3
  • salle de bains

Autour du bien

Découvrez le quartier

Simulation

Calcul des mensualités
* Champs obligatoires
BOUINOT (EI) Agence